Fixed-price concept design.

Ready to build something treasured, but seeking clarity first?

A concept design is the ideal first step. It’s a clear and affordable way to explore your ideas with an architect, without committing to full service fees. Our design package delivers a complete, sustainable design that’s personal, functional and contemporary.

Use it with your own builder or draftsman, or continue with us through planning and detailed design. The choice is yours.

  • Start with a small, defined investment rather than a lengthy contract

    • Reduce the risk of runaway costs or designing something you can’t afford

    • Eliminate the “uncertainty factor” that builders add when a design is unclear

    • Own your concept package outright. It’s yours to use as you wish

  • Explore design options without fear of extra fees

    • Take your drawings to builders for pricing

    • Hand the package to a draftsman for approvals and documentation

    • Continue with us for approvals or even into full service architecture.

    While this last option is our preferred path to ensure quality, the concept package gives you total control over the next steps.

  • Understand what an architect can achieve on your site in clear, visual terms

    • Access passive design strategies tailored to your site, lifestyle, and climate

    • Gain independent advice that strengthens your position with builders and consultants

    • Get a second opinion before committing to full service fees

Case study 01: Concept animations

How it works.
Streamlined. Inspired. Delivered.

We begin with a briefing to understand your goals, site and priorities. From there, we provide a fixed price estimate, a clear timeline and set of deliverables. Once confirmed, we jump straight in. Develop sketch layouts, 3D visuals and indicative cost guidance. The result is a complete concept package that is personal, practical and beautifully resolved.

“In building, the most expensive cost is the cost of the unknown. Uncertainty inflates budgets. A clear concept design and drawing set reduces guesswork and keeps pricing fairer and more predictable.”

— Common industry knowledge

Line drawing of a house on stilts with mesh-like windmill structures nearby, all depicted with simple black lines on a white background.

Case study 01: Concept sketch

What’s included.

Every concept package is a complete drawing set. Thorough, customized, and ready to move forward. It combines the essentials of good architecture with the flexibility to add more detail where you need it. The process includes five one-on-one meetings with the architect. From briefing to final presentation, ensuring you receive direct design input and clear communication throughout.

  • ROUND 1: Brief

    • Initial briefing and Q&A session

    ROUND 2: First Thoughts

    • Site Analysis

    • Room Schedule + Budget Analysis

    • Sketch concepts with minor variations for feedback

    • Client feedback within 1 week.

    ROUND 3: Developed design

    • Developed concept design with refinements and client comments

    • Client feedback within 1 week

    ROUND 4: Final Design

    Final design presentation including:

    • Site and concept sketches

    • Passive design principles

    • 3D form studies

    • Scaled plan set and area schedule

    • 3D renders with site and materials

    • Material palette and mood board

    • Design concept summary in plain language

    • Client feedback within 1 week. (minor changes only)

    ROUND 5: Design Submission

    • Next-steps plan for approvals and documentation

  • Design extensions

    • Landscape design integration

    • Interior design concept

    • Custom feature furniture

    Technical + planning

    • Planning approval preparation and coordination

    • Engineers Assessment

    • Sustainability Assessment (energy, orientation, materials, shadow path study)

    • Cost Assessment from QS

    Presentation

    • Professional renders or Animated flythrough

    • Physical model

    Next Steps

    • We stay involved as a design consultant

    • We take your project forward through documentation and construction

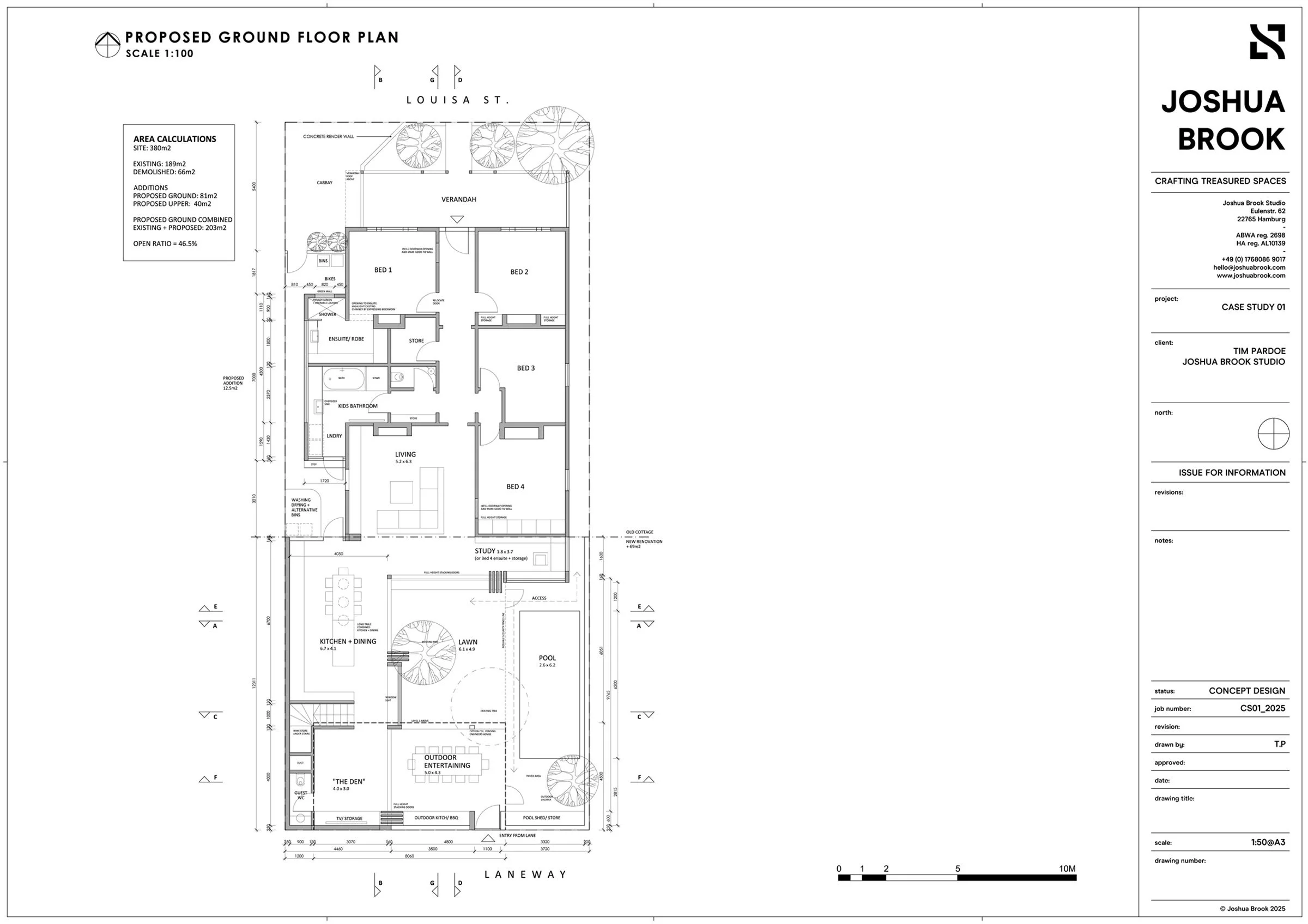
Case study 01: Drawing set

Pricing.

Every project is unique, so our fixed-price concept design adjusts to your scale, budget and level of detail.

The figures below show a typical range. After an initial, obligation-free meeting, we prepare a custom fee proposal tailored to your project. You can also explore how your budget is allocated using our budget calculator (link below).

  • Project Budget: Under $500K
    Fee: $20,000 – $25,000
    Compact dwellings up to approx. 150 m².

    Project Budget: $500K – $750K
    Fee: $25,000 – $30,000
    Mid-sized homes around 200 m² with considered proportions and detail.

    Project Budget: $750K – $1M
    Fee: $30,000 – $40,000
    Large custom homes up to 250 m² with higher material quality and refinement.

    Project Budget: $1M – $2M
    Fee: $40,000 – $80,000
    Expansive architect-designed homes up to 350 m² with elevated finishes and design ambition.

    Project Budget: Over $2M
    Fee: from $80,000+
    Premium residences above 350 m², crafted to the highest standards and complexity.

    All figures are excluding GST and VAT.
    Replace $ with for European projects.
    Renovations typically attract a 30% surcharge due to existing conditions and documentation complexity.

  • Interior Design
    Typically an additional 1.5% of project budget, depending on scope and finishes.
    Develops the internal spaces with detailed layouts, materials, lighting, and furnishing direction for a cohesive interior concept.

    Custom Furniture
    Typically an additional 1% of the project budget, depending on scope and finishes.
    This option develops bespoke joinery and feature pieces that elevate the overall design — from staircases and kitchens to integrated storage, cabinetry and foyer elements. Each piece is designed to complement the architecture and interior, creating a cohesive and crafted result.

    Landscape Design
    Typically an additional 1% of project budget, depending on site size and level of detail.
    Extends the concept to include outdoor spaces, planting zones, pathways and site integration studies.

    Planning Approval
    Typically an additional 1 to 1.5% of project budget.
    Develops your approved concept into a complete planning submission, including refined drawings, elevations, materials and up to two rounds of revisions.

budget calculator

Case study 01: Concept animations

Why else choose a fixed priced concept design?

A concept design package offers flexibility, clarity and creative direction, without committing to a full architectural service. It’s ideal for clients who want expert design thinking at an early stage, with the freedom to continue the journey in their own way.

  • Some clients simply want a clear design vision. Not a complete set of technical drawings. While full service offers great value, it’s not always essential.

    We focus on what we do best: shaping thoughtful, inspired concepts.

  • If you’ve engaged someone to manage documentation or construction, our concept design gives them a solid, well-considered foundation to build from.

  • A concept package helps you explore options early. By assessing design potential, budget, and feasibility before committing to a full build.

  • Sometimes it helps to gain a fresh perspective on a design or site. We offer an objective, creative review that can reveal new ideas or refine an existing approach.

  • Our fixed-price model makes the early stages of design simple and fast. With a clear brief, transparent fee and focused scope, we can deliver meaningful results in weeks rather than months. Helping you make confident decisions sooner.

  • A concept design gives you the big picture. How your ideas translate to space, budget and style.

    It’s a smart, low-risk way to confirm direction before engaging in detailed design and construction.

Black and white photo of a pool area with a tree, modern buildings, and a cloudy sky in the background during dusk or night.

Case Study 01 - Louisa Street Clients

“Tim Pardoe is an excellent architect. He designed the renovation of our heritage-listed house, seamlessly merging the original cottage with a modern extension. He is innovative, and creative with a fine attention to detail. He is very easy to work with, including remotely, and we highly recommend him and his work. Thank you, for helping us create such a beautiful home.”

Case Studies.

Check out the following projects that have been designed and built remotely, starting with a concept design package.

Louisa St. RESIDENCE
WILD HOP BREWERY
SOLOMON ST. RESIDENCE

Case study 01: Construction photos

Limited openings available.

Good design takes time. Our fixed-fee concept design package is available to a select number of projects each year. If your design is on our drawing table, its the most important job in the office.

Book a consultation